Laboratorio in vendita

Trino, Via G. A. Irico
€ 60.000
21 locali 21 locali
1300 Mq 1300 Mq
2 bagni 2 bagni

Laboratorio in vendita

Trino, Via G. A. Irico

Descrizione annuncio

Complesso artigianale 1.300 mq con uffici e cortile privato in vendita a Trino (VC)

Proponiamo in vendita un complesso immobiliare a destinazione artigianale con uffici, sviluppato su più livelli, con ampia metratura interna e cortile privato, ideale per attività produttive, laboratori, deposito o operazioni di investimento.

La proprietà si distingue per la versatilità degli spazi e la presenza di una porzione già a reddito, rendendola interessante sia per utilizzo diretto sia per messa a reddito.

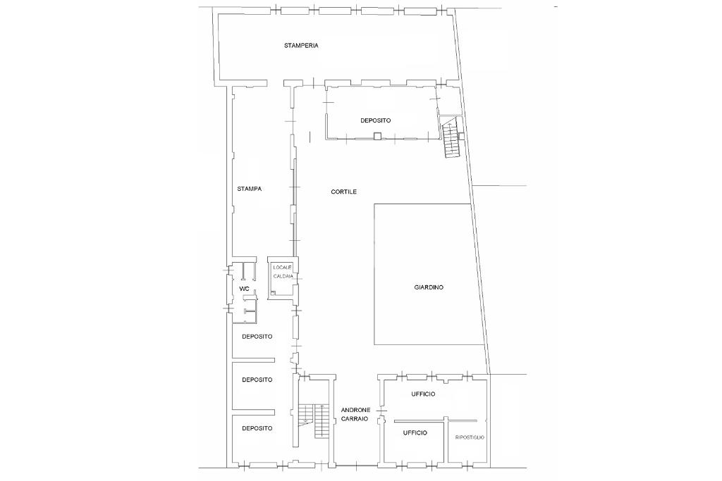
Piano terra – circa 500 mq

- Area produttiva/stamperia

- Deposito chiuso

- Locali ad uso laboratorio

- Locale caldaia

- Servizi igienici comuni

- Tre depositi

- Vano scala di collegamento al piano superiore

- Uffici: circa 70 mq, attualmente locati con rendita di 300 €/mese

Piano primo – circa 420 mq

- Deposito aperto (sottotetto)

- Camera oscura

- Laboratorio

- 10 locali da ristrutturare, ideali per ampliamento attività o riconversione

Spazi esterni

- Cortile privato interno: circa 250 mq

Dotazioni

- Riscaldamento autonomo a metano con termoconvettori

- Climatizzazione autonoma caldo/freddo

- Predisposizione impianto antincendio

- Tetto ripassato e sistemato nel 2024

Punti di forza

- Presenza di uffici già locati (rendita immediata)

- Spazi ideali per attività artigianali, produttive o deposito

- Possibilità di ristrutturazione e valorizzazione del piano primo

- Cortile privato funzionale per carico/scarico e manovra mezzi

Altre informazioni

- IMU annua: circa 3.500 €

Verifica catastale ed urbanistica in corso. La descrizione, i dettagli e le foto sono pertanto puramente descrittivi.

Contattaci per maggiori informazioni o per fissare una visita e seguici sui social per non perdere aggiornamenti e novità in anteprima.

Il team di Dreamers Srl è a tua disposizione.

Mostra tutto

Nelle vicinanze

Trasporto pubblico Trasporto pubblico
Trino Vercellese
Trino Vercellese
610 m
Trasporto pubblico
2,6 Km
Ricariche auto elettriche Ricariche auto elettriche
Municipio di Trino | EnelX
130 m
Trino Piazza Garibaldi | EnelX
190 m
Trino Piazza 29 maggio | EnelX
240 m
Scuole Scuole
Liceo Classico "Antonio Ambrogio Alciati"
120 m
Istituto Comprensivo Trino-Scuola Primaria
220 m
Istituto per l'Enogastronomia e l'Ospitalità alberghiera "Sergio Ronco"
290 m
Istituto Comprensivo Trino-Scuola Secondaria di I Grado
350 m
Farmacia Farmacia
Farmacia Le Grange
130 m
Farmacia Centrale
140 m
Farmacia Ospedale
230 m
Supermercati Supermercati
Supermercati
150 m
Coop
360 m
Negozi Negozi
Pasticceria Marisa
160 m
Bar Bar
Bar
150 m
Ristoranti Ristoranti
La Perla di Trino
90 m
Ristorante Pizzeria Il Capricorno
440 m
Il Convento
530 m
Mostra tutto

Caratteristiche

Rif.:
61196656
Piano:
1 di 2 (Piano su più livelli)
Balconi:
1
Condizionamento:
Predisposizione impianto
Ascensore:
No
Riscaldamento:
Autonomo
Mostra tutto
Prezzo Prezzo
€ 60.000
Rata mutuo Rata mutuo
€ 284 / mese
Spese annue Spese annue
€ 0
Proponi il tuo prezzoProponi il tuo prezzo

Classe Energetica

G
G
G
G
G
G
G
G
G
Anno di costruzione:
1900
Riscaldamento:
Autonomo
Tipo impianto:
A radiatori
Tipo alimentazione:
Metano

Ti interessa visionare l'immobile?

Fissa un appuntamento  Fissa un appuntamento

Richiedi informazioni

Clicca su Leggi per aprire l'informativa
* Questi campi sono obbligatori

Calcola il tuo mutuo

Semplice e senza impegno
Anticipo

( % )
Mutuo

( % )

pochi semplici passi

inserisci i tuoi dati
Questionario completato
Grazie per aver richiesto un appuntamento senza impegno con un nostro Consulente del Credito e Assicurativo.

Hai inserito correttamente tutti i dati necessari e a breve riceverai una e-mail con un link da convalidare per inviare i tuoi dati.
Affiliato
Dreamers Srl
Via Salussolia, 12 13043 Cigliano (VC)

Il nostro staff


  • Marco Schiaroli
    Responsabile

  • Mattia Pietrosino
    Affiliato
Via Salussolia, 12 13043 Cigliano (VC)
Zona: Santhià-Chivasso-Torrazza P.te-Crescentino-Cigliano-Caluso-Rondissone
Mostra su mappa
Affiliato
Dreamers Srl
Via Salussolia, 12 13043 Cigliano (VC)

2026 Tecnocasa Franchising S.p.A. - P. IVA 08365160152 - Via Monte Bianco 60/A 20089 Rozzano (MI). Ogni agenzia ha un proprio titolare ed è autonoma. Privacy policy | Policy utilizzo | Cookie policy